Zum Hauptinhalt springen

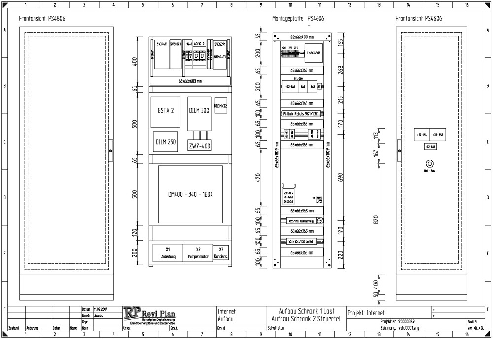
Schaltschrankaufbau

Wir können den Aufbau des Schaltschrankes Dokumentieren.

Musteraufbau Schaltschrank Pumpe